
Clock Tower Apartment
Entry to Watermouth Castle is included throughout your stay!
-
Clock Tower Apartment
Ground floor | 3 bedrooms | 2 bathrooms | Sea views from living room and bedrooms
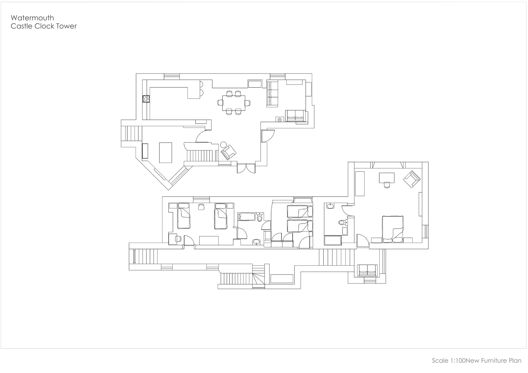
Layout
This apartment is interconnecting to Penn-Curzon Apartment. Please let us know if you are booking as a group and require the door to be unlocked for your stay, joining both apartments.
The apartment is over two floors with steep stairs.
Ground Floor
Open plan living space, with living area, dining area and kitching area.
Kitchen: With electric oven, gas hob, microwave, fridge/freezer and dishwasher.
Steep stairs up to...
First Floor
Bedroom 1: With four poster double bed and en-suite with shower cubicle and toilet.
Bedroom 2: With twin beds and en-suite with shower over bath, and toilet (Jack and Jill shared with bedroom 3).
Bedroom 3: With 2ft 6in four poster twin beds and en-suite with shower over bath, and toilet (Jack and Jill shared with bedroom 2).
Oil central heating included. Enclosed courtyard with sitting-out area and garden furniture. Private parking for 1 car. Please note: Music may be heard in parts of the apartment from the antique Mortier organ between 10am and 3pm.
All properties:
- Includes entry to Watermouth Castle throughout your stay
-
A standard deposit of 30% is required upon booking, unless your reservation is made within 6 weeks of your arrival date, in which case full payment is required.
-
The full balance is due six weeks prior to the arrival date. Failure to make full payment 14 days before your booking will result in automatic cancellation.
- Bed linen, towels, hair dryer, tea towel and oven glove provided. Please bring your own beach / pool towels.
- Clock Tower is our non dog-friendly apartment.
- Cot and highchairs available on request (£10 per highchair, £15 per cot)
- A Z-bed is available for an additional child on request (£40 per z-bed) - Please note this option is only available in South Court, Penn Curzon and Clock Tower apartments.
- Utility room with coin-operated washing machine and tumble dryer (shared with other properties on site)
- Patio with garden furniture (shared with other properties on site)
- 50-acre grounds (shared with other properties on site). No smoking.
- Please note: There is a lake and pond in the grounds.
Additional Facilities
- Sun lounge and indoor heated swimming pool (10m x 4m, depth 1m to 1.5m, open 8.30am-5pm) both shared with other properties on-site. Please note the swimming pool is open from April - October and closed in the winter months.
- Free entry to ‘Watermouth Family Theme Park and Castle’ during times when attraction is open to the public. Please note that Watermouth Castle is closed from the end of October half term through to March; the apartments will still be open at this time, but there will be no access to the attraction / theme park portion of the castle.
The Area
Set in an area of outstanding natural beauty, Watermouth Castle enjoys an incomparable setting on rising ground, commanding views over the bays and cliffs of the magnificent coastline stretching away to the east.
Take a woodland walk through the estate to the picturesque, award-winning village of Berrynarbor, or visit the coastal village of Combe Martin (less than 3 miles to the east) – famous not only for its sandy coves, inlets and majestic headlands but also as ‘the gateway to the Exmoor National Park’. Combe Martin offers a choice of shops and cafes, and one of Devon’s oldest inns!
Ilfracombe is only a five minute drive away to the west, with a range of seaside attractions, good shops and a golf course, and visitors can enjoy miles of golden sand at nearby Woolacombe and Croyde Bay. Superb cliff-top scenery and beautiful wooded valleys make this one of North Devon’s most scenic areas – as well as a paradise for walkers.
Beach: 500 yards away
Shops: 2 miles away
Pub: 1 mile away
Check in / Check out
Check in is from 4pm, and check out is 10am. You are more than welcome to arrive onsite earlier than 4pm and use the facilities.
Contact Us
Any questions? Get in touch with us at:
📧 accommodation@watermouthcastle-bookings.com | 📞 01271 545009

Sign up now
Sign up to be the first to hear about our latest news, offers and events.
We take your privacy seriously. See our Terms & Conditions and Privacy Policy. You can unsubscribe at any time.